Fortsæt til indhold

Tre forsamlingshuse får over to millioner kroner fra fond

Donationer til Stjær, Alken og Mesing betyder, at gamle bygninger kan tilpasses nutidens behov, samtidig med at historiske træk bevares.

Kultur og byliv

»I enhver lille flække i Danmark ligger der et forsamlingshus, der er drevet af frivillige kræfter, og som trænger til renovering. Nu kan vi endelig komme i gang med nogle af de ting, som vi gerne vil,« siger Helene Simoni Thorup.

Hun er formand for Storring-Stjær Borgerforening, der driver Stjær Forsamlingshus. De har netop fået 554.729 kroner fra Nordea-Fonden til at renovere forsamlingshuset.

»Det er megagodt, for det er virkelig tiltrængt. Huset er gammelt og udslidt, og det kan være svært at få penge til renovering. De fleste fonde vil gerne give til noget nyt,« siger hun.

Pengene skal blandt andet bruges på at sætte køkkenet og toiletter i stand, etablere en rampe og akustikplader.

»Det vil betyde, at vi i fremtiden kan have kreaklub og fællesspisninger i forsamlingshuset – alle de ting, man gerne vil i en lille landsby. Alle de ting, der understøtter et godt fællesskab og socialt samvær med hinanden,« siger formanden.

Støtten fra Nordea-Fonden udløser samtidig 275.000 kroner fra Skanderborg Kommunes Landsbypulje. Derudover har Stjær Forsamlingshus lige modtaget en anden donation på 90.000 kroner, hvilket betyder, at der er næsten en million kroner at renovere stedet for.

Genbrug er bæredygtigt

I alt har 159 projekter over hele landet fået del i 88,5 millioner kroner fra Nordea-Fondens Renoveringspulje. Puljen var oprindeligt på 75 millioner kroner, men den er blevet udvidet som følge af stor interesse og stærke ansøgninger fra hele landet. Målet med puljen er at fremme en mere ressourcebevidst tilgang, hvor eksisterende bygninger bevares og udvikles frem for at blive erstattet.

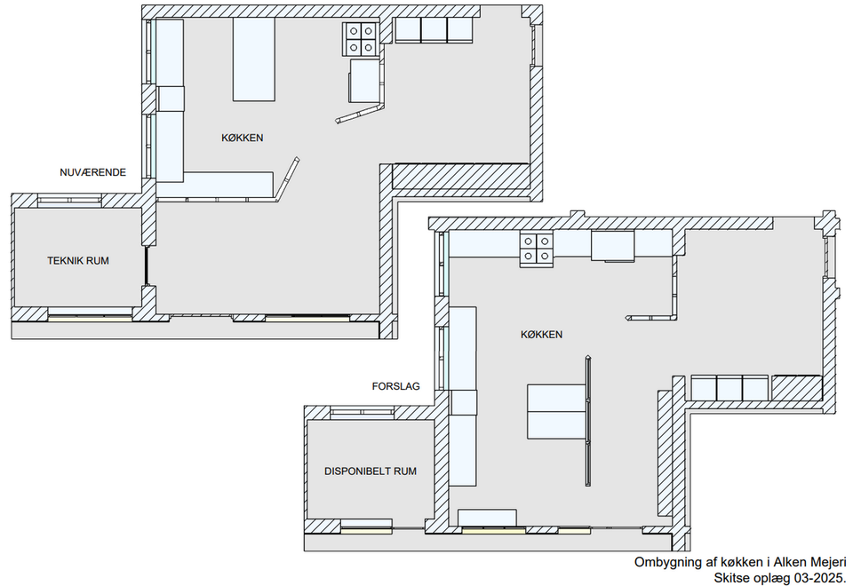
Det har de især taget til sig i Alken, hvor Alken Mejeri har fået den største donation i Skanderborg Kommune i denne omgang med 993.404 kroner.

Her skal pengene blandt andet bruges på at lave nyt køkken samt ny adgangsvej til køkkenet.

Sådan kommer forandringerne på Alken Mejeri til at se ud. Det industrielle look skal stadig bevares.

»Vi skal have lavet køkkenet større, og det kræver, at vi river nogle mure ned. Vi vil gerne gøre det mere attraktivt for børnefamilier, og lige nu er der ikke plads til, at man kan tage børn med i køkkenet,« siger Hans Hornbek, der er stedets kasserer.

Fordi stedet er et gammelt mejeri, er der på væggene i op til 1,3 meters højde påsat kakler. Dem vil de gerne bevare.

»Vi lægger selv nogle frivillige timer, hvor vi flytter fliser og kakler. Vi skal også flytte døre og vinduer. Andre steder kommer vi til at få nye gammeldags vinduer og døre, så der bliver pænt stadigvæk. Vi vil gerne beholde looket af den gamle industribygning,« siger han.

Det gamle køkkenudstyr bliver heller ikke smidt ud, når der kommer noget nyt. Kassereren forestiller sig, at de måske kan lave udekøkken af det gamle.

Tilpasset tiden

Det sidste sted, der har fået penge fra Nordea-Fondens Renoveringspulje i denne omgang, er Mesing Forsamlingshus. De har fået 564.575 kroner, der skal bruges på vedligeholdelse. Det fortæller formanden, Ulrikke Brandt Nordqvist.

»Der skal laves nyt tag på den ene halvdel af forsamlingshuset. Den anden halvdel blev lavet for cirka fem år siden, og nu er turen kommet til resten. Vi skal også have nye vinduer og efterisoleret,« siger hun.

Meningen er, at renoveringen udover mere lys i salen skal gøre forsamlingshuset billigere i drift.

»Vi skal hele tiden tilpasse huset til vores samfund og gøre nye funktioner mulige. Vi bruger forsamlingshuset til noget andet, end vi gjorde i 70’erne. Vi skal udvikle vores åndehul, så det passer til dagens Danmark. Det giver noget liv til de små lokalsamfund, hvor der ikke nødvendigvis er en skole, børnehave eller købmand,« siger hun og fortsætter:

»Vi takker Nordea-Fonden for den hjælp, der muliggør, at vi kan blive ved med at have de her mødesteder i de små samfund. De steder er så vigtige.«

Livsbekræftende vilje

Hos Nordea-Fonden udtrykker de også glæde over at kunne hjælpe de lokale mødesteder.

»Vi ser en stadig stigende og livsbekræftende vilje i hele landet til at passe på og udvikle de steder, hvor mennesker mødes. De støttede projekter er virkelig gode eksempler på, at initiativet lever med mere grøn omstilling og plads til flere i de lokale fællesskaber i hele landet,« siger Henrik Lehmann Andersen, der er administrerende direktør i Nordea-Fonden, i en pressemeddelelse.

Han peger ligesom de lokale forsamlingshuse på, at puljen rammer et aktuelt behov.

»Mange steder er faciliteterne godt brugte, og driftsudgifterne er høje. Når kræfterne bliver lagt i energirenovering og samtidig gør stederne mere åbne og tilgængelige, skaber vi sammen bedre rammer for fællesskab – både nu og i fremtiden,« siger han.